(1)中央分附帶波形梁護欄采川分設型或組合型,可根據中央分隔帶的寬度、構造物和管線的分布加以確定。
(2) Am級中央分隔帶分設型波形梁護欄由二波波形梁板(310mm X 85mmX 4mm)、立柱(0140m爾X 4. 5mm)和防阻塊(196mX I78mmX200mm X 4. 5mm)等組成,如圖2一14所示.

圖2-14中央分隔帶分設型Am級波形梁護欄構造(單位.mm)
(3) Am級中央分隔帶組合型波形梁護欄由二波波形梁板[2(3一。二m X 85mm X 4mm)〕、立柱(價140執(zhí)mX4.5二,)和橫隔梁(480m X 200mmX 50mraX4甲5mm)等組成,如圖2一15所示。

圖2一15中央分隔帶組合型Am級波形梁護欄構造(單位.mm)
(4) SBm級巾央分隔帶波形粱護欄由三波波形梁板(506mm X 85mm X 4mrn).立柱(口130mmX 130m= X 6mm)和防阻塊(300rn X 200mm X290mmX 4. 5m幻a)組成,如圖2-16所示。

圖2一16中央分隔帶分設型SBm級波形梁護欄構造(單位:mm)
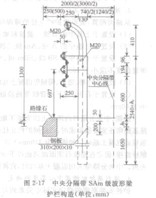
(5) SAm級中央分隔帶波形粱護欄由三波波形梁板(506mm X 85mm X 4mm)、橫梁(9mmx 5. 5mm)、立柱(口130mm X 130mm X6mm和盧102mm X 4. 5mm)和防阻塊(300m X200mmX 290mm X 4. Smm)等組成,如圖2一17所示

圖2-17中央分隔帶分設型Am級波形梁護欄構造(單位.mm)